2022-10-24 08:32
一、 净化车间 设计依据

净化车间技术方案是根据使用单位提供的有关技术参数及要求进行设计的。
无尘车间900㎡ 纺机 精密加工装配,无尘恒温 20°
30×30×6米
物流-人员
二、净化车间设计目标
本工程为贵公司碳纤维行业铺层、成型等工艺建设项目,其目的是提高产品质量,缩短作业生产周期,改善工人劳动环境。建成后设备不仅满足使用要求,且运行可靠、操作简单、维修方便、工人操作条件安全良好。同时本设备在结构设计、配套件选择、施工质量方面均应达到国内同类产品的先进水平。
三 、净化车间工程概况
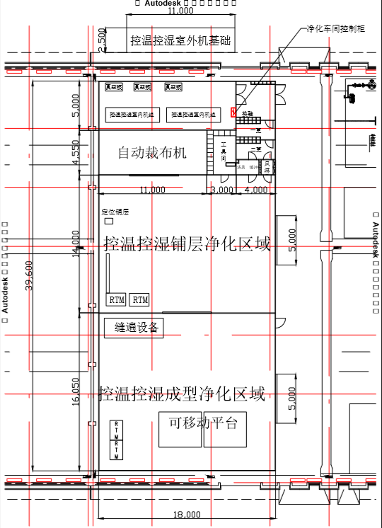
本工程规划面积约为720平方米,在一端设置机房、更衣室、人员风淋通道;30万级标准净化车间分为两个区域,中间有推拉门隔断,两个区域可单独控制区域内的温湿度;对裁布机区域隔断,增强排风力度,便于生产时产生的灰尘及时排出车间外;室外机组安装在大车间外部。
设计内容包括净化车间结构工程、洁净通风空调系统工程、洁净室内电气配置工程、抽真空系统等项目。
四、净化车间内环境主要技术参数
房间名称 | 换气次数 | 温度℃ 湿度% | 洁净级别 | 噪音dB (A) | 静压差Pa | 照度Lx |
洁净车间 | 12 | 18℃—26℃ 50%-70% | 30万级 | ≯65 | +12 | 300 |
五、净化车间布局流程及气流组织说明
人员方向为:工作人员通过换鞋、更衣、风淋进入核心操作区,完成后由缓冲间门返回(不经风淋室)。
物流方向为:两个独立区域分别配有进出入和隔断大门,可直接进出入净化车间。洁净室采用上送、下侧回风的气流组织方式,保证实验室内气流均匀由上而下流动。
六、净化工程材料的说明
1.地面(本套工程地面部分和整个车间内地面由客户统一施工)
洁净区地面涂环氧树脂自流平地坪漆,做到无缝平滑、美观易洁、防尘防菌、耐酸耐碱等优点。
2.墙体
洁净区墙体顶板采用岩棉夹芯板:面层材料为彩钢板。墙体材料的主材及辅材无毒、符合环保要求,强度高、美观、耐腐蚀、使用寿命长及防火等级都能达到国家新实施的GMP规范标准。具体彩钢板规格:板厚50mm,彩板板厚度0.476mm;墙体与吊顶、墙体与墙体、墙体与地面所有连接均为阴、阳圆弧角连接,缝隙处采用密封胶密封,使室内部不存在死角,以便于清洗。
3.吊顶
净化车间吊顶标高度设置为45 00mm;
4.净化车间配置人流风淋通道、和货物出入大门。
净化车间人流风淋通道均为彩钢板密封门,门框为铝合金喷塑双密封门料,门体与门框的结合处均用橡胶密封条进行气密封。货物出入净化车间大门采用高纯度PC透明水晶片,不锈钢管连接电动水晶卷帘门,车间两个净化区域隔断处设置一套彩钢板推拉门。

5.密封窗
密封窗采用洁净专用铝合金窗框型材,4mm玻璃。
6、洁净区域阴角采用R=50mm铝合金圆弧角做装饰,门口加树叶形堵头.消除室内阴角死角,美观且不易积尘,易于清洁。铝合金圆弧角及门窗材料均采用氧化铝合金型材。

7、根据通风空调的需求,洁净区内设置回风柱。
七、净化车间暖通工程净化空调要求
室外设计参数: 冬天-10℃;夏天35℃
室内设计参数: 18℃-26℃
压力梯度、洁净度:参照技术要求。
工程要求:优良
1、中央空调系统要求
本项目空调系统分为两个区域,可单独控制区域的温湿度,根据标准30万级洁净间换气次数不小于12次,为满足工作人员的健康需求,每个工作人员所需新风量不小于40m3/h;加之为维持室内正压、空调排风系统排风及正常损耗,选用天津“维克”20000m3/h风量的组合式净化空调机组两套,来满足各项参数的需求。
净化车间设置单独的组合式洁净空调机组,对洁净区内进行净化,送风及冷热调节。新风量设计为总送风量的20%,满足洁净区内排风设备(通风橱)补风。
2、空气处理过程
新风 初效过滤器 中效过滤器 高效过滤器 洁净区
3、净化空调系统配置及气流组织
(1)送风系统经过初、中、高效过滤器处理,保证车间内的静态洁净度达到洁净要求。
(2)各级过滤器采用铝合金框架结构,且高效过滤器布置在房间内的送风口内,采用上送下回式的气流组织形式。
(3)三级过滤:初效(G4级),中效(F8级)位于中效加压风机箱内,高效过滤器位于送风末端。高效过滤器过滤(H13)效率0.5μm应达到99.%。高效过滤送风口有负压密封措施,还便于过滤器维修,维修人员无需进入洁净室即可维修。
4、送风系统。风量占送风总量的20%,新风经净化空调机组处理温湿度达到要求,经风管加压风机送入高效送风口,经高效过滤器处理后,均匀流入洁净区域内。
5、回风系统。洁净区的气流经回风百叶进入回风管道,通过管道与新风混合,经净化空调机组处理后送入送风系统,如此循环既经济又能满足净化区内要求。
6、排风系统。排风系统设置排风机,风量调节阀、过滤器,既能满足室内正压要求又不污染环境。
7、其他说明:
室内气流组织合理,合理布置高效送风口、回风口位置,避免死角、断流、短路。
通风管道采用镀锌风管,加工件制作安装符合国家相关标准。风管保温采用橡塑材质。
噪音说明:机组噪声控制保证实验室的噪声满足或优于国家有关规定及规范要求
八、净化车间控制配电说明
1、整套系统控制采用西门子PLC可编程控制器+触摸屏(维纶)人机彩色界面智能控制。
2、采用TN-S三相五线制供电系统,动力和照明分开设置,设置一台配电柜,供电保证净化车间的用电安全。线路设置单路供电。
3、所有的线路均采用阻燃PVC电线管,室内彩钢板内暗敷设,吊顶内明敷设。
4、室内照明灯具采用吸顶式密闭洁净灯。实验室内照度300Lux,室内应无强烈反光。灯具关键电器元件使用飞利浦品牌。照明灯具开关距地1.4米安装,插座均距地0.3米安装或根据使用人员要求作具体调整。
5、工艺用电配置按甲方要求配电,大功率用电设置空气开关且插座选用多功能型插座,所有插座回路设漏电保护。安装高度依现场设备要求而定,便于日后工作人员的操作。暗装插座、开关选用国内知名品牌。
七、净化车间抽真空部分(与客户仔细交流技术参数后确定预留接口数量、位置、真空泵数量)
初步计划预留8个真空管接口,管路选用镀锌钢管,安装“真空压力表”与专用“真空阀门”,在车间内预留接口,便于客户对接抽工件的短接管道。
真空管路配置
名称 | 型号 | 参数 | 数量 | 备注 |
真空表 | Z-100 | 精度度等级1.0% | 2件 | |
真空阀门 | GM-25H | 公称通径16mm | 8件 | |
镀锌钢管 | 通径25mm |
真空泵(一台)
名称 型号 参数 备注
名称 | 型号 | 参数 | 备注 |
真空泵 | HKD60-100 | 抽气速度40 m3/h 极限真空0.1 mbar 电机功率5KW | 德国好凯德 |
真空泵选用U旋片真空泵技术参数:选用德国“好凯德”双机旋片式进口真空泵。智能化控制,能够设定真空压力。
八、净化车间提供文件
设备验收时提供两套完整文件,包括使用说明书和维护手册、电器原理图、合格证。
九、净化车间质量保证
1.安装调试
我公司将派出有经验的工程技术人员到现场进行负责安装及调试工作
2.设备验收
设备经试运转、自检后交付验收。最终验收在设备使用现场,验收条件以合同或技术协议为准。
3.保修期
设备保修期一年,从最终验收签字之日起计时。保修期内零件损坏,由乙方免费修换。
4.培训
我公司对操作工、电修、机修人员进行现场集中培训,直到会操作会维护和简单的故障排除。
5.售后服务
正常使用后,我公司有专职售后人员对设备定期跟踪服务。设备运行中出现问题,在接到报修电话后48小时内到现场服务。
6.备件及消耗品供应
长期平价提供质量可靠的备件和易耗品。